Two significant planning applications are up for your scrutiny and comments – the land south of Coldham’s Lane – including the lakes, and the next phase of the Marleigh expansion next to the Cambridge Ice Rink – now re-opened.
You can read the news articles for the essentials:
- Planning permission sought for 420 homes in phase two at Marleigh development in Cambridge – with the official website for the development at https://www.marleighphase2.co.uk/
- New plans to transform Cambridge’s hidden lakes into an ‘urban country park – with the official website for the development at https://landsouthofcoldhamslane.co.uk/vision/
You can view the applications on the Greater Cambridge Planning Portal that covers Cambridge City Council and South Cambridgeshire District Council. The reference numbers are:
- 21/02450/REM for the Marleigh Development of 420 homes
- 21/02326/FUL for the East Cambridge Lakes
See also my guide on how to comment on planning applications from my old blog.
420 new homes by the Cambridge Ice Arena
You can see a more detailed view of the map area below from G-Maps here.

Above – the red balloon is at the East Barnwell Health Centre in Abbey Ward. Note there are already conversations happening locally on how to improve East Barnwell at https://www.eastbarnwellconversation.com/ – and with good reason:

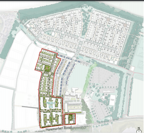
Above – Phase 2 of the Marleigh development.

Above – dating from 2008, a conceptual vision of what East Cambridge could become, assuming the closure of Cambridge Airport. From the East Cambridge Action Plan.
So that gives you a long term & big picture setting of a complete overhaul of this part of Cambridge that could result in as many as 12,000 new homes built. That’s on top of the 15,000 proposed for North East Cambridge, and however many the Cambridge Biomedical Campus, plus the continual expansion of Cambridge both North West and South East provide. A reminder that all of this is dependent on the ability of the water companies to source new water supplies, and retro-fit water-saving measures into the existing urban infrastructure.
Land South of Coldham’s Lane – the East Cambridge Lakes
Not without controversy, the very long journey to get these proposals to planning application stage is finally here.
The lakes have been known under various names – the website regards the whole development site as ‘Land south of Coldham’s Lane’. You can read about the history of the site when it became the Norman Cement Works on Capturing Cambridge.
A few years ago I wrote this blogpost following both a site visit/public open day in 2018 that over 1,000 people turned up to, and also taking part in a community event that hundreds of people participated in to give their views. Even further back in 2014, I went along to another event looking at what use could be made of the site – in the face of repeated and continual break-ins during the summer.
The scale of these developments and the shortage of large sporting, civic, performing arts and leisure facilities in Cambridge means that large developments have to incorporate city-wide and county/regional facilities.
If East Cambridge is going to grow at the rate planned, then it needs to incorporate city facilities that also benefit local communities rather than risking becoming a dormant part of town where people work and study elsewhere. Thus a new secondary school is essential. And a site could become available if the longer term proposal to move the existing Park & Ride comes to fruition.

Above – this map came from a recent online meeting on Cambridge Eastern Access proposals which you can watch here. The Greater Cambridge Partnership is responsible for the Cambridge Eastern Access Project.
In terms of further city-wide facilities, I’ve already called for an Adult Education College for lifelong learning to be built in one of the new East Cambridge developments. At the same time, the rapidly-growing community does not have an arts centre – something to think about if we are going to move to the concept of a 15 minute city. Although I’m of the view that Storey’s Field in North West Cambridge/Eddington, and the Clay Farm Centre in Trumpington, South Cambridge are too small for what they are for, they function as performance spaces for their respective communities. In my part of Cambridge we’re fortunate to have The Junction – thanks to some community-minded teenagers and young people in the 1980s. That is due for redevelopment, the concept is here. I’ve not heard anything since though.
Both my call for a new arts centre by North Cambridge Station, and also one as part of the proposals for East Cambridge mean that each of the the large residential areas of Cambridge will have their own district centres. A decent transport network, including segregated cycleways and mass transit or bus routes will furthermore increase the choice that people have, while at the same time ensuring that their journeys are as safe as can be.
The risk however, remains that too many of these developments remain inward-looking and only provide the minimum for the new residents, rather than dealing with some of the city and county-wide lack of facilities and access – in particular to the countryside and large open green spaces. We need to learn the lessons of previous phases of development in Cambridge where the lack of green open spaces – for example in Petersfield/St Matthew’s, is acute.
If you are interested in the longer term future of Cambridge, and on what happens at the local democracy meetings where decisions are made, feel free to:
- Follow me on Twitter
- Like my Facebook page
- Consider a small subscription to help fund my continued research and reporting on local democracy in and around Cambridge.
