Mike Scialom at The Chesterton Festival and Adrian Peel at the Arbury Carnival remind us of the importance of larger community events. But they rely on volunteers, and this year (2022) we lost the Cherry Hinton Festival.
In order to build on north Cambridge’s successes, and the lack of success this year in Cherry Hinton (I believe we can reverse this given what I saw in 2021), we need to think about who is still missing out, why, and how we can have more inclusive events going forward – because in the light of some comparative research published recently, the arts and culture sectors are still bedevilled with some familiar problems.
Cambridge events
We’ve had a few of late that the Cambridge Independent has covered:
I also wrote about how our community fairs and festivals need volunteers to keep them going – see this recent post.
We’ve also got a few more coming up:
- The Big Weekend on Parker’s Piece (free)
- The Cambridge Folk Festival (not free)
- The Mill Road Winter Fair (free – on Sat 03 Dec 2022)
I was also reminded of the chronic diversity issues the arts sector has, from Dr Dave O’Brien, who co-authored a comparative study on how cultural consumption changed during the ongoing pandemic.
” The pandemic has, based on our analysis, not disrupted the arts audience, whether in terms of bringing in new engagement or in terms of key demographics of existing consumers.
‘Digital’ will not be enough to change the arts; rather, the core lesson of the pandemic is the need for real vision as to what a representative and fair cultural sector would look like in order to reach a truly representative, and thus diverse, audience.”
Tal Feder, Siobhan McAndrew, Dave O’Brien & Mark Taylor (2022) Cultural consumption and Covid-19: evidence from the Taking Part and COVID-19 Cultural Participation Monitor surveys, Leisure Studies, DOI: 10.1080/02614367.2022.2088831
I was then further reminded about who was excluded and by what barriers after falling down an internet spiral looking up more new old books about social reform and progress in the 20th Century. It was an article in Angry Workers on the experiences of low paid workers from all over the world had, in the face of one of the biggest and most profitable multinational corporations in the world.
“One of [the Amazon warehouse workers] said last week after deductions he got £170 for four days. He said one time he got £74 for a week’s work. He lost his job when pandemic hit and says he has no choice.
“One guy we were in touch with has quit. Said he couldn’t take it. Worked 36 hours the other week and was paid £170 after deductions. Everyone knows they often work for less than minimum wage”
Flyering at the Croydon Amazon Depot, in Angry Workers, 28 August 2020
How can anyone on such a low wage even begin to ‘engage with the arts and culture sector’ when every day they are faced with the choice of heating or eating?
This linked me to (or was it the other way around) to the book Class Power on Zero Hours. The mention of ‘class’ in a political rather than in a primary school context often switches people off – or reminds them of Monty Python’s constitutional peasant in Holy Grail.
“We are all Britons, and I am your king!”
***I didn’t know we had a king! I thought we were an autonomous collective!***
But then I read the intro and felt very spotted.
“At the time, we didn’t have to leave ‘careers’ to do this. We were either already doing blue collar jobs or floating about in Berlin, not really sure what to do next. One of us had worked in NGOs for ten years, leaving the sector with a sense that ‘everything is corrupt’ and trying to ‘change government policy’ was a waste of time.
“It therefore wasn’t a massive leap to decide to move to a working class area where there were larger, more ‘strategic’ workplaces to get jobs in. It didn’t feel like ‘dropping out’ as much as getting ‘plugged in’. A lot of people we knew were either doing boring office jobs, lonely PhDs, or burning out in their pursuit of a high-flying career. So we didn’t have too much [Feeling Of Missing Out] FOMO.”
Introduction – Class Power on Zero Hours, 2020
If you want to buy the book (£10 + £3 p&p) see here
How can anyone ‘engage in the arts and culture sector if they are burnt out from a stressful job combined with a long commute that takes up to three hours out of each day every day?
That bit in bold? That’s me – burnt out in pursuit of a high-flying career. I wrote about my experiences about six months after left the civil service in that summer of major job cuts in 2011.
“I’d love to say that the story had a “happily ever after” ending, but it didn’t. I didn’t go onto become one of the high flying senior civil servants treading the corridors of Cabinet Office or the Treasury (though I did get to go to both on various occasions). A large number of Fast Streamers decide for whatever reason that the scheme – and even the civil service is not for them.”
The Civil Service Fast Stream in A Dragon’s Best Friend (my old blog), 13 Jan 2012
I’d like to think all of us who left the civil service in that time have had time to reflect about our time inside the system, what we’ve learnt since, and how a future civil service and politics, policy-making systems, and legal systems as well as public services generally need to be improved – improved for the many, not just the few. And improved so that far more of the general public actually understand and can influence positively the public services they rely on in their communities.
Condensing the above paragraphs into what the problem is
Former Cambridge resident and author Liz Frazer got spot on what I think many of us are looking for in this unstable world we live in.
To get to that point of feeling a sense of belonging (given my experience of not belonging anywhere in my adult life) requires having a whole host of other things in place before hand. And whether on an unstable zero hour contract to having a stupendously long commute to an office-based job even on a greater-than-median salary, too many of us are not having our essential needs met in order to experience a sense of belonging. I found this out the hard way.
Many of you will be familiar with Maslow’s hierarchy of needs and subsequent critiques of it – and how people’s needs change with time and circumstances.
So when we take the extremities of those on the lowest of wages and/or in the most insecure of work and accommodation, what chance does anyone in those situations have of taking part in arts, culture, or community events?
My experience of burning out – and what I learnt from it/how it transformed my mindset towards people and communities
Take people who have long commutes and/or work long hours. How do they have the energy and ‘spoons’ (capacity and stamina) to undertake community activities when they need that time to recharge their internal batteries?
I remember in 2008 having spent the most of a Sunday in various stages of consciousness – asleep, half asleep, sort of awake – wondering how I was ever going to get to a stage where I’d be ready to settle down and take on a mortgage, and possibly start a family if this was my state as a Fast Streamer with only more stressful jobs and roles ahead of me (despite the increase in pay). And then locking myself into that for the next quarter of a century at least.
I think that was the point where I said to myself I did not have the capacity to become a parent. It was also a time when friends & relatives of my generation were also starting to have children of their own, and seeing the massive increase in workloads & responsibilities looking after children involves, put a very different light on everything that school and the 1990s culture of ministers hating single mums had imposed upon my generation. It was also the point at which the importance of things like Sure Start, Child Allowances, and neighbourhood community centres & creches hit me.
The big Trades Union Congress march earlier today (18 June 2022)
I’m using this screengrab from the BBC News’ landing page as of 11:20pm on 18 June 2022 to give a snapshot of today.

Culture wars, climate emergency, cost of living crises. Three themes in four news items.
The cost of living crises has inevitably led to demands for pay rises from workers – especially those that have faced real terms [accounting for inflation] cuts to their wages – with the Rail, Maritime & Transport Union being one of the first to ballot for strike action over this.
The earlier-than-usual heatwaves in Europe are a reminder of the climate emergency and the need to overhaul both working practices and our urban environments. It’s too late for prevention. We were warned (see here from 1990), but people in power over successive generations ignored the warnings such as those at the Rio Earth Summit in 1992.
Dame Kelly Holmes reminds us of the multiple barriers/discrimination she and others have had to overcome to get to where she was as an elite athlete. See the protected characteristics in the Equality Act 2010 listed here. They didn’t get there by accident – people fought for those legal protections over generations. Those struggles continue with parts of the print press & their outriders having found ‘woke’ to be the new ‘politically correct’ label.
The Trades Union Congress march in London had tens of thousands of people on it – though estimating numbers is never an easy thing. Authorities tend to under-estimate, and organisers tend to over-estimate, has been a general rule of thumb, depending on whose like you want to spin. The more you want to dismiss such marches as insignificant, the lower your estimate will be (BBC News saying ‘thousands’), while some of the more optimistic estimates were over 100,000 people.
For me, the exact numbers or even ballpark numbers are less relevant than the video footage and what people saw on their screens. That plus the experiences that first time marchers had – will it make them want to get more involved and more active? For example, one of the reasons the 2019 General Election result was so disappointing for pro-EU people like me was that earlier that year we had seen millions sign a petition for a second referendum, and a huge protest march in central London that was awe-inspiring in terms of its diversity (esp presence of younger marchers) as well as its size.
Above – a timelapse I filmed & created from 23 March 2019
Rebuilding community infrastructure – physical and social
…and that is after 12 years of austerity, the blow from Brexit, a pandemic, and a toxic culture of corruption in national politics, while bracing for the worst that the climate emergency will throw at us.
Mr Scialom reminded us what is possible. Even on a rainy day.
“The variety of stalls was remarkable. Just yards from each other were Cambridge Art Salon, Cambridge Museum of Technology, the Hundred House Society, Hope Church Chesterton, East Chesterton WI, CamSight, Winter Comfort, Cambridge Liberal Democrats, Cambridge Water, Healing Dogs for Deaf People, the 12th Cambridge Scout Group and the 1st Chesterton Girls Brigade. Plus tombolas, raffles, garden ornaments and a free hand reflexology stall.”
Mike Scialom, 18 June 2022
The array of civic society groups (and the volunteers who run them) is impressive – and it would be lovely to see more of our neighbourhoods having similar. Again, I remain stubborn in my call for an annual Cambridge Societies Fair which I first wrote about in 2012. What Mr Scialom saw at the Chesterton Festival gives just a glimpse of what a much larger event might be like – held in a much more accessible site for more people to get to by public transport, and much more highly publicised too.
There are setbacks too
Cherry Hinton normally has an annual festival, but sadly not enough volunteers stepped forward for 2022. So they are planning already for 2023. Yet at the same time, ministers are again threatening essential community services with even more austerity.
You can read the above article here. This stems from the cost of living crises – in particular the rise in energy bills and inflation associated with it, combined with continued tough funding settlements from ministers. Non-Conservative councils are no guarantee that community facilities will stay open. The last time the Tories lost control of Cambridgeshire County Council was in the early 1990s. But tough funding settlements from John Major’s Government meant it could not save the old Mill Road Library, which closed in 1996. It has only recently been renovated and restored.
New facilities in new developments run by longstanding community groups
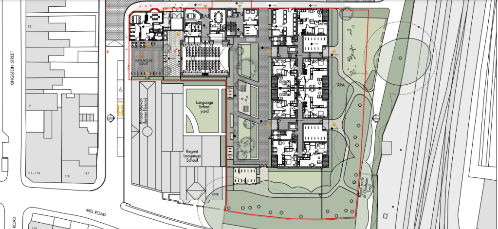
There will, however be a new community hall in the new Iron Works site next to it. This will by run by the Romsey Mill and the Petersfield Area Community Trust. You can see the plans from the original planning application in the Greater Cambridge planning portal and typing in 19/0175/FUL into the search box.

Above – overview of the Ironworks, with Mill Road at the bottom, and the railway lines to the right.

Above – same diagram as before, just zoomed in more. You can see the old Mill Road Library at the bottom left, and the proposed community hall in the top right.
Personally I think it’s too small, but then across the road there is St Barnabas Church which has been transformed into a venue suitable for multiple community uses as well as for services – its maximum capacity (theatre style as in the Iron Works) being 250 – over double.
Community action is hard work, and the work of community development officers are all too easily derided as ‘non-jobs’ in parts of the national print press.
While the work of a community development officer in a newly-built housing estate is inevitably time-limited, the running of community centres is something that in my view should be fully remunerated with permanent staff to provide that much-needed stability – and perhaps more importantly, that familiar face who the community can trust while being the eyes and ears of the wider public services to nip any emerging problems in the bud. I grew up in an era where we didn’t have youth clubs in my teens, such were the depth of the cuts by John Major’s Government and Margaret Thatcher’s before. I remember in the year 2000 working in London as a temp in the civil service in the old Lord Chancellor’s Dept and I got talking to a young taxi driver about youth crime. I asked him if there was one policy he thought the Government should do to reduce youth crime, what would it be? He said:
“Re-open all of the youth clubs”
His statement was an instant response – a reactive one that came from the heart. And 22 years later I can still remember his words and the voice he said it in. A tall, Black Londoner with a north London accent and a baritone voice that had a natural authority to it.
It’s something I keep coming back to with my own childhood, where in the summer of 1991 one of my younger brother’s friends took us to a youth club run by the Salvation Army next to St Barnabas at the time. We were in our final two years of primary school, and our parents let us go every week after swimming lessons at Parkside pool for much of the summer term. There was no heavy religious element to it – just a couple of games rooms, a badminton court, and a sparsely decorated tuck shop with some tables and chairs. The young woman who ran the tuck shop was in her mid-teens and was both hard as nails and yet someone we felt we could talk to. There was a sort of mix of classes and backgrounds as there could have been for early-1990s Cambridge. White working class, mixed heritage, to the sons of a university professor.
And yet for that brief period of time – similar to when me and my siblings spent a fortnight every summer at our aunt & uncle’s place in the Hertfordshire countryside, we were outside of the rigid institutional structures of school and church, so had the mixes of backgrounds and age groups that provides the sort of mentoring for each other that money cannot buy in a central government procurement process – but that paradoxically the lack of funding to local councils and community groups can destroy.
“What will success look like?”
You’ll know it when you see it, hear it, and feel it.
And I felt we were getting somewhere with the old Volunteer for Cambridge events. Have a look at this medley I made from back in 2016.
Above – an example of trying to showcase a variety of groups and organisations at a community event, with participants talking about what they do for our city.
You can also see a Mill Road Winter Fair version – with some familiar faces!
Normally I’d be running around getting to as many such fairs and festivals to make similar videos, but fate intervened in December 2017 & December 2021 which means I’m much less mobile and also have lost a huge amount of confidence and courage to go out and simply do the filming.
All of the above, however does not deal with the very essentials that were mentioned in the first two articles quoted: the people on low pay and in unstable jobs, and those with very long commutes and long hours. Combine those with child care or elderly caring responsibilities and you can see how quickly the barriers build up. And trying to get a feel for what it’s really like is not something that can be done on from a desk using social media alone. Nor are there any prizes or hero worship at the end of it.
“Go to where the people are, instead of waiting for them to come to you”
It’s on my ‘to do’ list. Or was until I found myself in hospital last December. But basically it was to follow-up with The Junction on whether they had done door-to-door deliveries of their programmes of events in the neighbourhoods on their doorsteps – in particular the newbuild communities on the other side of Hills Road Bridge, and by Homerton College. This was having discovered in 2019 from a ward survey commissioned by Cambridge City Council for Coleridge residents that very few of us were going to events at The Junction and also attending the Cambridge Folk Festival. This is despite ticket availability for both in the pre-CV19 years.
“People said that neither had sent them publicity for tickets or invitations to community events even though they were on their doorstep. This is a big missed opportunity for both institutions
“In the grand scheme of things, local outreach and marketing should be quick and fairly easy wins for both. It’s far less effort to get to and from the venues – it’s walking distance.”
Community Building In Coleridge – in A Dragon’s Best Friend, 21 Jan 2020
In it for the long haul
And that’s what we’re not so good at collectively. Whether it’s ‘reaching out’ to diversity audiences in the arts and culture sector, trying to get more of your communities involved in your work, to trying to get more people involved in local democracy or a political campaign, the first paragraph from Flyering at Croydon Amazon Depot speaks volumes and applies to all three. Paraphrased to apply to all:
- It requires mundane steps.
- It requires discussing the ‘difficult questions’
- It requires building local groups.
- It requires regular and repeated visits.
It’s one of the reasons why I joined the Cambridge Acorn Branch – they are doing this and are doing it very well. Add the above to the points made at the end of the introduction to Class Power on Zero Hours (scroll to the end):
“We wrote this book in six months while working manual, low paid jobs and while continuing our work around the solidarity network and workers’ newspaper. We don’t want a medal for it, but it’s relevant in two regards:
- we use it as an excuse for the fact that the book is rough and raw; but
- we also want to make the point that writing something relatively substantial doesn’t mean you have to become an academic or journalist or take on any another form of intellectual profession.”
Which meant being on what feels like an endless grind. Nearly 20 years ago before I joined the civil service, I was in that grind, working in a supermarket and not really sure where my future was going. I had just finished a part-time post-graduate diploma and was waiting for my ‘big break’. But it was seeing the repeated injustices that changed me as a person:
- not being allowed to join a trade union or have a qualified person with you if/when faced with disciplinary action,
- having little consideration from management when setting staff rotas,
- ‘targets of numbers of customers to serve per hour’ – even though said numbers of customers did not flow through the doors,
- staff being on a series of short six-month fixed term contracts. (Easy to fire – simply don’t renew the contracts).
And those were just a few. (And to make it worse, this was happening under a Labour government. Things are even more punitive now).
Investing in communities – and not just financially
It involves more of us investing time, effort, skills, and non-monetary resources into our communities, towns, and cities as well. And not just by responding to the generic calls for volunteers for particular causes [Save the planet!], roles [Be our volunteer treasurer/chair of trustees!], or events [Could you plan our next big fundraising party?].
“An example?”
Repair cafes – such as the one coming up at The Edge Cafe at the eastern end of Mill Road on 09 July 2022. (there are another nine repair cafes coming up in South Cambridgeshire over the next few months – see here and scroll down)
Organised by Cambridge Carbon Footprint, volunteers with particular skills spend a couple of hours at each event repairing small items (clothing, small electronics) for free.
“Repairers are always keen to teach visitors how to do the repair themselves and at the very least watch while they do it. We organise occasional repair skillshares on introducing electrical repairs, upholstery, sewing, bike maintenance etc.”
Cambridge Carbon Footprint – Cambs Repair Cafes
That’s an example of people with specific skills investing in our communities, assisting people on the lowest incomes who might not be able to afford a professional repairer, (and thus going without), while learning some of the essentials at the same time, and saving an item from landfill. And once people get over the first hurdle of going to a new community event, who knows? They may want to get involved in more.
Food for thought?
If you are interested in the longer term future of Cambridge, and on what happens at the local democracy meetings where decisions are made, feel free to:
- Follow me on Twitter
- Like my Facebook page
- Consider a small donation to help fund my continued research and reporting on local democracy in and around Cambridge.
