With the troubles of North East Cambridge, it looks like one of the reserve sites – Worsted Lodge north of the Abingtons on the east side of the A11 is being brought forward for the emerging local plan.
Land adjacent to A11 and A1307 at Grange Farm
You can read what the new policy from the Greater Cambridge Shared Planning Service says at p38 of the PDF here

Above – confirmation of a proposed NEW SETTLEMENT at Grange farm – part of a new large site with lots of new homes and employment premises (a ‘Strategic Allocation’)
The vision from John Simpson Architects gives an interesting snapshot when compared with Cambourne (see G-Maps here) or even Cherry Hinton – comparing the early post-war vs late 1980s housing north of Fulbourn Road between Cherry Hinton Hall and Fulbourn Tesco here. Essentially this is *not* an urban extension. Assuming this gets approval, this could provide the developers with a chance to come up with something that Create Streets were talking about for Cambridge.
“Grange Farm is a plan for a new market town South of Cambridge designed to accommodate the burgeoning need in the locality for accommodation suitable for young families to attract talent to remain in the area to work in the AI and biomedical fields.”

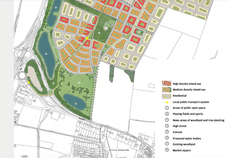
Above – vision for Grange Farm by John Simpson architects

Above – From the delivery paper (p6) in the supporting evidence tab in the GCSP database – where you can access more information on the proposals

Above – detail of the two nearest sci-tech parks – Babraham and Granta Park being separated by the A11 dual carriageway, Delivery Paper p7


Above – note the varying heights of the buildings/population densities proposed, Delivery Paper p15.
“They are going to need some big sound barriers next to those sports pitches”
That’s ultimately a National Highways issue but there’s nothing to stop such barriers being required as a condition of planning.
What the policy document from the GCSP Service states
As mentioned earlier, it’s not an urban extension. Furthermore, it wants to avoid becoming a dormitory town.
“Development proposals must make a positive and meaningful contribution to the creation of a fully functional, self-contained new settlement.”
Above – Policy S/GF p39 of the PDF
This means that all of the basic needs for residents should be available to them within the settlement, and not require frequent journeys into Cambridge (the regional centre) to acquire goods/services. That’s not to say people won’t be commuting into Cambridge from there – that’s why the CSET Park’n’Ride is mentioned in the proposals. It also requires
“Approximately 6,000 homes, including:
- i. affordable housing, self and custom build homes and key worker housing to support surrounding employment sites;
- ii. 10% of the approximately 6,000 dwellings as specialist accommodation (withinClasses C2 and C3), particularly for older people or those with disabilities
A total of 12 Gypsy and Traveller spaces within a site of up to 1 hectare“
This should bring in some diversity in housing design. Note the inclusion of key worker housing – something that previous local plans have resisted because councillors have prioritised social housing for those in the greatest housing need given housing waiting lists.
The policy also requires:
- a range of employment spaces (not just offices or sci-tech labs)
- Primary and secondary schools
- Healthcare facilities
- Community and Leisure facilities
- Food growing space and community gardens
There are also a number of clauses in the policy that I’ve not seen before either in policy documents or actually built out. This includes:
- Discussing future segregated active travel routes as complete networks rather than a series of uncoordinated separate routes
- Last mile logistics hubs
- Edge of town ‘car barns’ to reduce the need for on-street car parking by visitors
Heritage issues
There are lots of them due to the number of sites in/around Little Abington


Note the additional wastewater treatment plant as well – given Anglian Water’s issues
Affordable and social housing
In January 2025 I wrote about Cambridge’s house-building statistics. That’s a sizeable number of new affordable homes completed. The problem is that housing need has not fallen at the same time. Quite the opposite.

Note the completions are *net* figures and take into account the number of sub-standard council properties that were demolished. The figures from 2024/25 should be higher because of the number of council houses being completed (and to a higher housing density) that have been built on the sites of former council houses. For example at Cherry Hinton by the revamped library and hub.
The developers indicate they would want to start building before 2030 and anticipate completing the site by 2044.
Which reminds me – keep an eye on the Cambridge Growth Company’s website.
If you are interested in the longer term future of Cambridge, and on what happens at the local democracy meetings where decisions are made, feel free to:
- Follow me on BSky <- A critical mass of public policy people seem to have moved here (and we could do with more local Cambridge/Cambs people on there!)
- Like my Facebook page
- Consider a small donation to help fund my continued research and reporting on local democracy in and around Cambridge.
