Can we get developers and land owners debating with local residents and campaign groups prior to the formal hearings – and thrash out what needs to be said to each other in advance?
You can read the story and look at the map here.
There is *so much* that I could write in the face of lots of recent publications that have come out on the future of Cambridge. With so much being published, there is the immediate risk of people and institutions not talking or listening to each other. As a result, plans risk becoming incompatible with each other, and/or risk adding to delivering/build costs that could easily be avoided.
Building for a regulatory environment (and a climate emergency) of 2030 onwards.
It has to be different to the one of the past couple of decades.
Above – the BBC Newsnight show covering the UK’s Building Safety Crisis four years after the Grenfell Tower disaster. Which, let’s not forget, 72 people lost their lives in.
It speaks volumes of the Prime Minister and his Housing Secretary Robert Jenrick that so little has been done on housing safety. The major shortcomings in the building industry – in particular the supply chains and certification, continue to be exposed in the hearings on Grenfell Tower.
The architectural monoculture of previous local plans
This is not something specific to Cambridge, and you can find similar examples all of the place. I think it is important we take stock of, and evaluate what we got from past local plans. Which is why I’m going to pick on the most recent development that caught my eye for the wrong reasons. I spotted the proposed Trinity Fields development sign at the Gazelle Way / Airport Way roundabout north of Cherry Hinton having been defaced by graffiti questioning where the water was coming from.
This led me to the construction of another development around the corner off Coldham’s Lane: Eastfields.

You’ll be familiar with the pattern of a single developer building from a monolithic pattern book of minimalist designs that reduce the cost of building to as low as the law might allow. And even then that’s not low enough for some unscrupulous operators as the Grenfell Tower disaster and subsequent investigations – in particular on cladding, have since exposed. I then found the original brochure for the development.
What really saddened and maddened me was that the marketing people seemed to have very little knowledge of the local area. Of the nearest state schools, only one of the three is actually listed in their list of schools. Netherhall and Coleridge are not listed.

And as the editor of the Queen Edith’s (neighbouring ward to the south) Newsletter noted…
It’s assumed that Marshall’s Airport will close and move to Cranfield, but that’s still a decade away – assuming the emerging local plan approves the proposals to do something else with the land.

Above – funny-lookin’ buildings, with Cherry Hinton Hall and grounds only getting a mention in a throwaway paragraph. No mention of Mill Road either.
As for what’s being built, again it’s hardly inspiring.

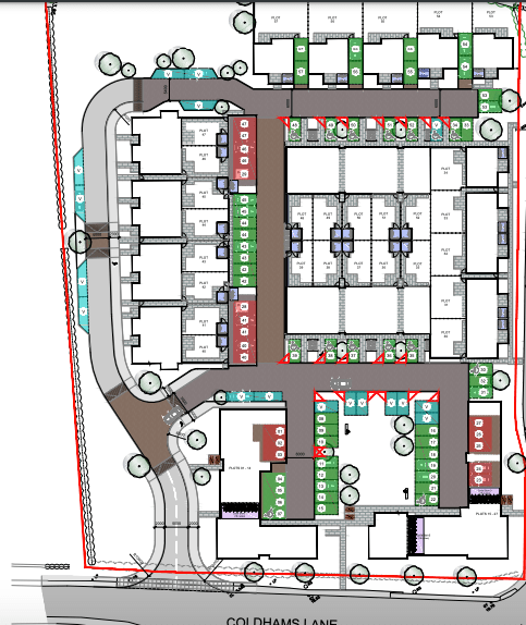
Above – from the designs submitted to Cambridge City Council’s Planning Team. See https://applications.greatercambridgeplanning.org/online-applications/ and search Ref: 16/0746/REM to see the full set of documents.

Above – the view from GMaps here. As I mentioned, the people of Cherry Hinton – including the residents moving in, deserve so much better than this. The layout again is basic – something commented on by the urban design panel, before waiving it through.

Essentially it’s a single entrance/exit into a cul-de-sac.
Now, picture this sort of piecemeal development happening over a time period of decades.
And what do you get? A sea of housing with no large green spaces, and the bare minimum of community facilities. Given the collective trauma of Covid that we are still going through, along with the climate emergency and the failure of ministers to keep their promises over Brexit, Social Care, and a host of other things, the society that the 2030 local plan will be building for will be very different to the one that Eastfields was building to – the one signed off in 2006 which you can read here. I predict that more than a few of the recently-built properties will have to have major work done to them if Cambridge is to meet its climate commitments. If we are to meet the zero carbon challenge, the huge programme of renovation and reconstruction that is required is, in my view beyond the imagination of the present generation of senior politicians. Or rather, I’ve not seen any of them demonstrate whether they have comprehended the scale of the task ahead.
Slightly more positive noises from a more recent but speculative plan between Cherry Hinton and Fulbourn
This is the speculative East of Cherry Hinton proposals submitted for the new emerging plan. They may have been submitted for the current 2018-30 local plan as well.

With the above image you can see the attraction to developers – it links Teversham with Fulbourn. The problem is historically that is the last thing that villagers in both parishes have wanted ever since Cambridge started expanding eastwards from the railway station!
It’s tricky to get to where the documents are embedded, but bear with me.
The link will eventually bring up a map that looks like this. The shaded blocks in red and purple indicate sites that have been submitted to Greater Cambridge Planning for assessment to include as sites for development in the 2030-41 local plan.

Click on any of the sites eg where the small red balloon icon is – and note it is just outside the city boundaries, which for me indicates that we are beyond the stage of needing to refresh Cambridge’s municipal boundaries, and the menu below will emerge.

Above – this shows that for the area selected with the small red balloon icon on it, it proposes a Mixed Use development with 1,200 units (flats, houses, rabbit hutches) plus 50,000 square metres of commercial floor space. It also has a ‘Link to JDI Record’ hyperlink. Click on that ‘Click to open’ hyperlink. You then get the below screen appearing:

Above – this is where the ***really interesting*** information is buried. It’s in the final tab – ‘supporting evidence’.

And these are the files.
What’s interesting about these files is the institutions financing the proposals have spent significant sums of money on independent consultants to come up with evidence bases to increase the chances of approval by the councils and planning inspectors. Hence preamble like this:

…and conclusions like this:

Above – the list in the left column is much longer with more bullet points. The point is the consultants have identified a higher threshold for this piece of land compared to others around Cambridge. Therefore they are recommending more expense be incurred to increase the chances of the site being approved – noting that their remit was to support the masterplan and vision. At the same time though, the caveats that these consultants have identified will inevitably be of interest to those that oppose the proposals.
East of Cherry Hinton Vision Document
What is our part of the city going to be like in 2040?
If I’m still around, I’ll be approaching my 60s. Assuming I am, then much of what is being proposed won’t be built for me or my generation. How do we know what our living arrangements will be like?


Above – I like what they’ve done here – the challenge now is to find out what the essentials and the desirables are for each group. And not just for the neighbourhood, but also for the wider city.
Designing new neighbourhoods that serve a wider geographical area
This for me is the acid test for the Greater Cambridge Local Plan 2030-41
As I wrote earlier this year, Greater Cambridge is failing its young people. I also said that “The 2021 elections must result in a substantial collective response” – and the electorate responded by turfing out the Tories from both the county mayoralty, and political control of Cambridgeshire County Council. So they/we have done their/our bit. A new generation of politicians with new mandates for the next four years. It remains to be seen how many of the South Cambridgeshire District Council seats the Liberal Democrats can hold onto in 2022 after their unexpected 2018 landslide in a previously safe-as-castles Tory-held council.
Conditionality on development – and the net biodiversity increase requirement.
One of the clear steers given to the Cambridge Biomedical Campus is that if it wants to expand southwards, a significant amount of land next to it not only has to be set aside and protected from future development, but has to have significant work done to it to improve the biodiversity of what is currently industrial arable farming for want of another term. This could be useful principle to adopt as Cambridge expands. Fewer ‘pocket parks’ and more substantially larger open spaces and nature reserves with with more access to the public travelling on foot or by cycle/active transport.
Re-committing the promises made to build things like the new swimming pools, arts centres, concert halls and wider leisure facilities made in previous studies and assessments
It’s something I’m going to keep reminding everyone as we go through this process: When are we going to get the stuff that we were promised last time around? Only the house-building has continued but people’s access to new facilities has not. Cambridge City Council Architect Gordon Logie made the case in 1967 for a new concert hall in Cambridge. By the time Cambridge gets to 2040, the city alone will have more than 50% more people in it than in Logie’s time. And that’s not counting the new towns of Waterbeach, Cambourne, and Northstowe that will be looking towards Cambridge on larger leisure facilities. So for example:
- Who will provide new outdoor facilities for rowing given overcrowding on the River Cam? (When will we get Cambridge Sports Lakes)
- When will we get the long-promised University Swimming Pool in NW Cambridge? (Personally I think the students should take a lead on this)
- What facilities and attractions do other towns and cities have that might be suitable for somewhere like Cambridge?
- What actions are the transport planners taking to ensure safe, segregated active travel routes are built into future plans at design stage, and not as a last-minute add-on at the end?
- Which are the facilities that will inevitably attract people from beyond the council areas of responsibility, and how do we plan & accommodate for this?
- What are the facilities that Cambridge cannot hope to provide, but are well-provided for elsewhere within say a 2 hour drive, and how do we improve transport links to those places?
Food for thought?
If you are interested in the longer term future of Cambridge, and on what happens at the local democracy meetings where decisions are made, feel free to:
- Follow me on Twitter
- Like my Facebook page
- Consider a small subscription or donation to help fund my continued research and reporting on local democracy in and around Cambridge.
